Logo alt

Conception de projets immobiliers
Solutions pour l'accessibilité et le handicap

Centres de rééducation & Particuliers
Agenda d'Accessibilité Programmé
Réparation du dommage corporel
Bailleurs & Maîtres d'ouvrage

Adaptation des logements



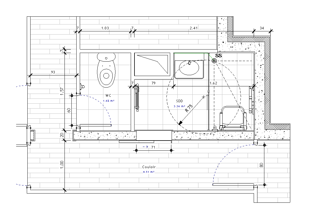
Souvent à la demande des médecins ou des ergothérapeutes des centres de rééducation, LMCPI intervient afin de rechercher et définir en fonction de la pathologie et des besoins des solutions d’adaptation des logements.

La mission de la société LMCPI est de vous écouter pour comprendre et appréhender vos besoins d’aménagement et/ou d’adaptation afin de vous proposer des solutions techniques correspondant à votre situation et à vos envies.

Pendant cette phase d’étude, en plus de répondre à votre besoin d’autonomie ou de sécurisation, la société LMCPI prend en compte l’ensemble des paramètres nécessaires à la réussite de votre projet :

  • toilettes handicapé

    Plan

  • fauteuil roulant

    Coupe

  • handicap

    Axonométrie

Les étapes de votre projet


logement normes handicap ad'ap

La première étape consiste à réaliser et vous proposer un avant-projet technique qui prend en compte tous les critères attendus. Cet avant-projet est illustré par des plans en trois dimensions précis et réalistes, des perspectives et un cahier des charges des travaux à mettre en œuvre.


La société LMCPI va ensuite rechercher des prestataires indépendants et les mettre en concurrence pour chiffrer les travaux.


plan de travail ergonomique, surbaissé

Enfin, LMCPI planifie, organise et suit les travaux tout en respectant vos impératifs d’emploi du temps.

L’objectif est de contrôler que le cahier des charges soit respecté pour que la réalisation corresponde aux choix d’aménagement et de matériaux que vous avez faits.

Un compte rendu illustré de photographies vous est adressé à l’issue de chaque rendez-vous de chantier.